appartamento

Faenza (RA), Stazione
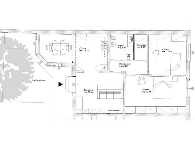
Recupero della storica palazzina delle Maioliche d’arte F.lli Minardi: unità A1 posta al piano terra con corte privata ed ingresso indipendente, composta da soggiorno, ampia cucina, 2 ampie camere, bagno/i, posto auto esclusivo, cantina.
Richiesta: € 290.000
rif 4664
290.000 EURO
4 locali
2 camere
1 bagni
superficie lorda principale 95 mq



piano / piani terra / 0
riscaldamento autonomo
cucina abitabile



tipologia offerta appartamento






Prestazione Energetica



nome
cognome
telefono
e-mail
richieste
Codice di verifica Inserisci il codice che vedi visualizzato

Ultimo aggiornamento: 07/02/2026 h. 08:20      website Dinamo   data Cometa